All of our pre-drawn plans are designed to build. Simply find the plan that fits your needs, make your purchase, and download your PDF. Your designs are then ready for a builder to turn into your dream home (and if you need any modifications, we can help with that too! – learn about modifications).
Our Plans will include all the information and details a builder will need to take the project from beginning to completion, with the exception of structural engineering and specific framing requirements for your local area. All of our plans include:





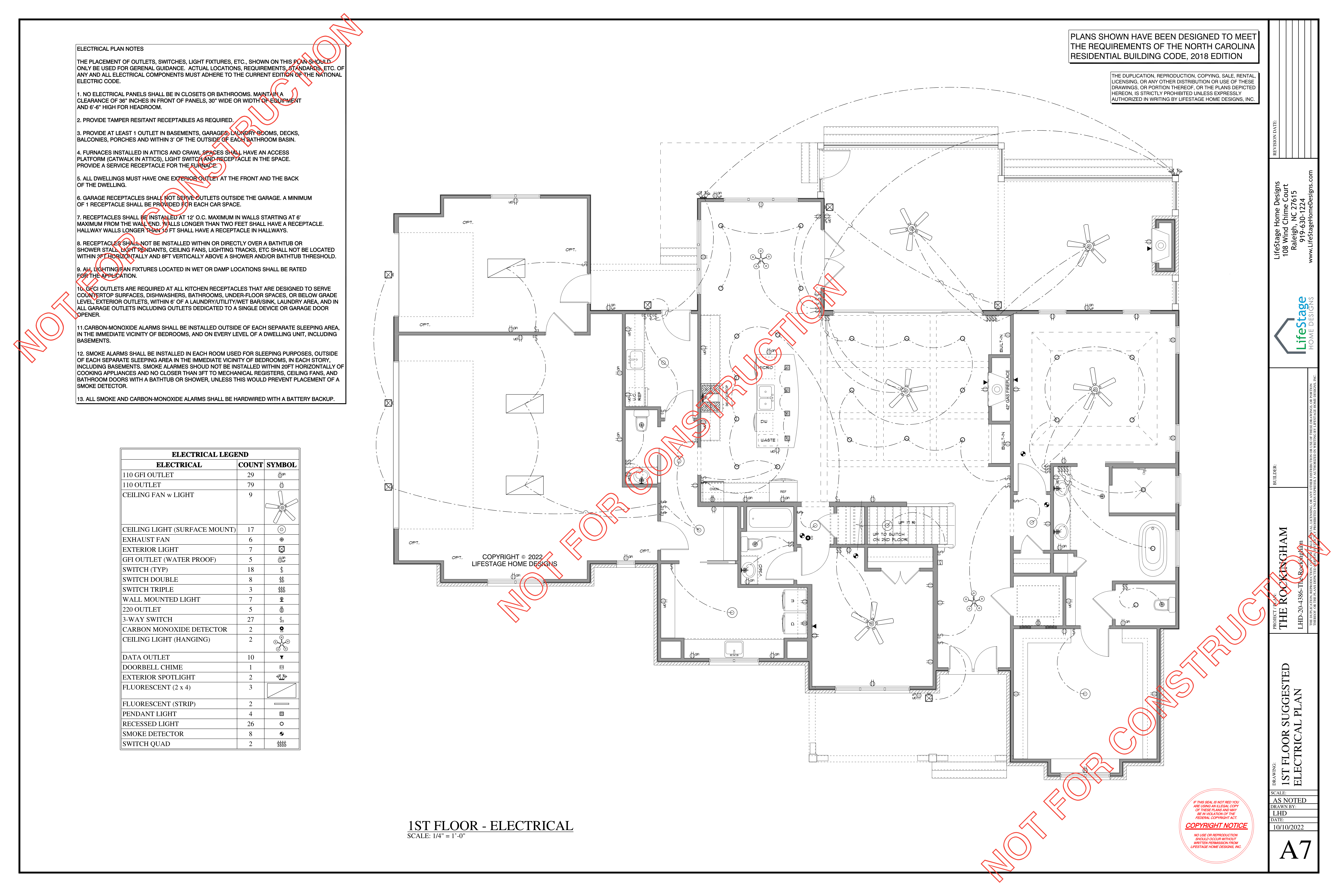
Lighting Plan: Suggested Electrical Plan showing light fixutres, outlet and switch placements (not available for all plans but can be added).

*PLEASE NOTE: Since we market and sell our house plans to a national audience, you will need to have your plans reviewed by a licensed architect or structural engineer, in your local area, who is familiar with the building codes and standard building practices in the location you intend to build your home.
If you have any further questions, feel free to contact us for more information.
Home plans designed by LifeStage feature some or all of these features of universal design:
Open and spacious floor plans allow for easy living throughout the entire home, ensuring full usage by anyone, with any ability. View Plans
With the master bedroom on the first floor, you can comfortably live and age in place. View Plans
All of our plans specify a zero-entry shower. Which not only look great, but are safer and easier to access for everyone in the family. View Plans
Aligning closets now provides spacious, deep closets, as well as a simple way to add an elevator to the house later, if needed. View Plans
Forget handrails, wheelchair ramps or steps that prevent visitors. A house designed with a stepless entry ensures anyone can safely live in or visit your home. View Plans
Whether you’re pushing a stroller, using a wheelchair, or moving furniture, you'll be free to navigate inside your home unobstructed. View Plans
The main tenant of universal design is access for everyone. LifeStage homes work for multiple generations, varying abilities and all ages. Build a home that’s practical and welcoming. Shop the home plans now.